【実績】分譲マンション(仙台市太白区南大野田)
- 専有面積
- 50.76㎡
閑静な住宅街に位置する築32年の中古マンションをフルリノベーション。和室を洋室に変え、フローリングを明るめの色に。リビングダイニングと洋室をつなげ、広々とした空間に生まれ変わりました。
Before
After
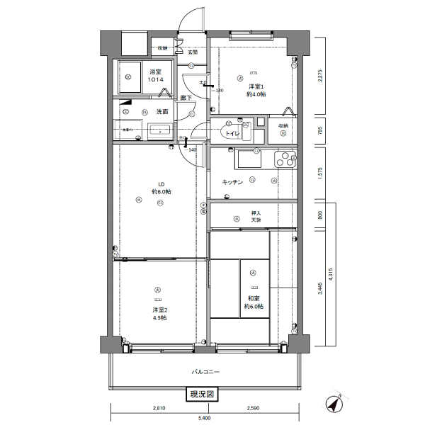
間取り図
- Before
-
- After
-
- 交 通
- 仙台市地下鉄南北線「富沢」駅 徒歩9分
- 構造
- 鉄筋コンクリート造
- 所在階
- 2階部分
- タイプ
- マンション
- 専有面積
- 50.76㎡
- 間取り
- 2LDK
- 工事内容
- ・キッチン(食洗機付) ・ユニットバス(浴室乾燥機付) ・洗面化粧台 ・靴箱 ・建具 ・巾木 ・フローリング(リビングダイニング・キッチン・各洋室・廊下) ・給湯 ・給水給湯配管(専有部) ・分電盤 ・玄関タイル上張 ・トイレ ・洗濯パン ・クッションフロア(洗面室・トイレ) ・玄関人感センサー付 ・全室天井・壁クロス ・全室照明付 ・和室→洋室に変更 ・北側洋室エアコン先行配管工事(エアコン本体付) ・ハウスクリーニング 等















