【実績】分譲マンション(仙台市青葉区立町)
- 専有面積
- 80.82㎡
西公園を望む開放的な眺望が魅力の中古マンションをフルリノベーション。洋室のじゅうたんをフローリングに変え、全体的にすっきりとした印象に仕上げています。リビングダイニングにつながる和室を洋室に変え、戸を開けると15畳を超える広さに。
Before
After
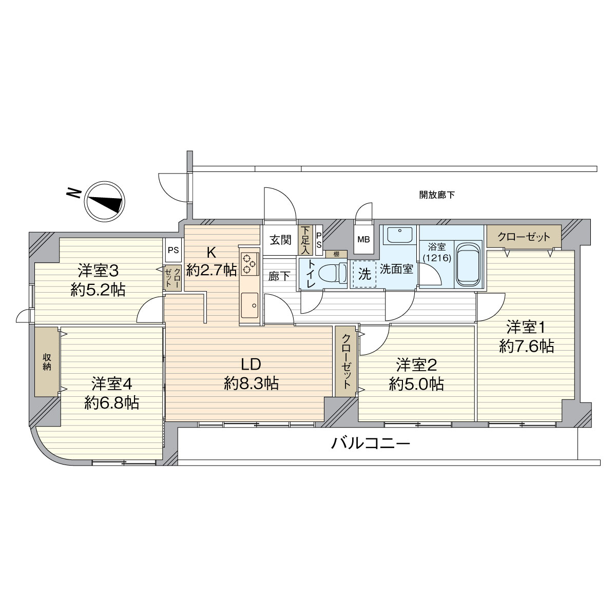
間取り図
- After
-
- 交 通
- 仙台市地下鉄東西線「大町西公園」駅 徒歩7分 仙台市地下鉄南北線「勾当台公園」駅 徒歩12分
- 構造
- 鉄骨鉄筋コンクリート造
- 所在階
- 10階部分
- タイプ
- マンション
- 専有面積
- 80.82㎡
- 間取り
- 4LDK
- 工事内容
- ・全室天井+壁クロス ・キッチン ・ユニットバス ・フローリング(リビングダイニングキッチン・廊下・洋室) ・和室→洋室に変更 ・建具 ・洗面台 ・トイレ ・玄関人感センサー ・給湯器 ・給水給湯管 ・クッションフロア(洗面室・トイレ) ・下駄箱 ・玄関フロアタイル ・洗濯パン+洗濯水栓 ・分電盤 ・各室照明器具 ・カーテンレール ・ハウスクリーニング 等
















