【実績】分譲マンション(多賀城市東田中)
- 専有面積
- 78.56㎡
自然に囲まれた快適な住環境、眺望・採光良好な中古マンションをフルリノベーションしました。和室を洋室に変更し、押入もクローゼットに変えて、おしゃれな印象に。全体的に白を基調とした明るい色合いにまとめています。
Before
After
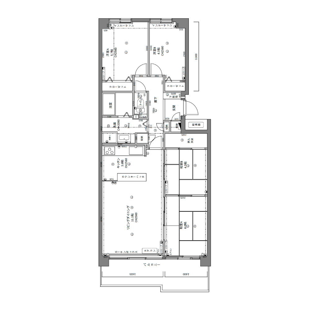
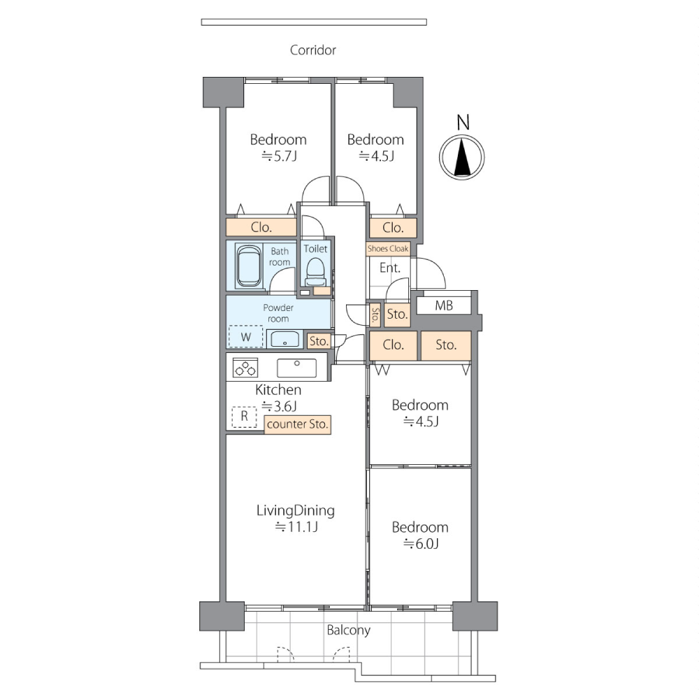
間取り図
- Before
-
- After
-
- 交 通
- JR仙石線「多賀城」駅 徒歩8分
- 構造
- 鉄骨鉄筋コンクリート造
- 所在階
- 8階部分
- タイプ
- マンション
- 専有面積
- 78.56㎡
- 間取り
- 3LDK
- 工事内容
- ・キッチン ・ユニットバス ・洗面化粧台 ・トイレ ・建具 ・下足入 ・フローリング(LDK・廊下・洋室) ・クロス ・防水パン ・洗濯水栓 ・玄関タイル上張 ・クッションフロア(洗面室・トイレ) ・カーテンレール ・給湯器 ・専有部分内給水+給湯管 ・照明 ・北側洋室2部屋エアコン先行配管 ・ハウスクリーニング 等
















