【実績】分譲マンション(仙台市青葉区支倉町)
- 専有面積
- 75.04㎡
バルコニーから広瀬川を一望できる、日当たり・通風良好な中古マンションをフルリノベーション。リビングダイニングにつながる和室を洋室に変え、戸を開けると18畳を超える大空間。フローリングも明るめの色にすることでより広く感じられます。
Before
After
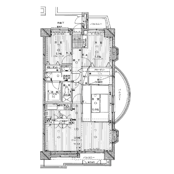
間取り図
- Before
-
- After
-
- 交 通
- 仙台市地下鉄南北線「勾当台公園」駅 徒歩14分
- 構造
- 鉄骨鉄筋コンクリート造
- 所在階
- 12階部分
- タイプ
- マンション
- 専有面積
- 75.04㎡
- 間取り
- 3LDK
- 工事内容
- ・キッチン(食洗機付) ・ユニットバス(浴室乾燥機付) ・洗面化粧台 ・下駄箱 ・建具 ・巾木 ・フローリング(リビングダイニング・キッチン・各洋室・廊下) ・分電盤 ・玄関タイル ・トイレ ・洗濯パン ・クッションフロア(洗面室・トイレ) ・玄関人感センサー付 ・全室天井+壁クロス ・全室照明付 ・和室→洋室に変更 ・ハウスクリーニング 等

















